
Khu đô thị Eurowindow Twin Parks tọa lạc tại trung tâm phía Đông Hà Nội. Dự án được kiến tạo như một công viên tươi xanh nằm đối diện công viên trung tâm Gia Lâm được quy hoạch rộng gần 31ha. Đây chính là đặc quyền riêng biệt vô giá dành tặng các chủ nhân của Eurowindow Twin Parks khi sống trong môi trường tràn ngập thiên nhiên và hưởng trọn cuộc sống an lành và thịnh vượng.
Chủ đầu tư: T&M Việt Nam
Đơn vị phát triển: Eurowindow Holding
Vị trí: Đường Thành Trung, Trâu Qùy, Gia Lâm, Hà Nội
Quy mô: 9,6ha
Loại hình: Biệt thự, Shophouse, Liền kề
Tiện ích: 33+ tiện ích với nhà để xe, bể bơi ngoài trời, sân tập thể thao
Hình thức sở hữu: Lâu dài
Tình trạng: Sẵn sàng bàn giao, nhận nhà ở luôn


Eurowindow Twin Parks tọa lạc tại trung tâm Gia Lâm - khu vực phát triển năng động bậc nhất phía Đông Hà Nội với hệ thống hạ tầng đồng bộ và đã được phê duyệt để trở thành quận mới của thủ đô trong năm 2023. Nhờ vị trí đắc địa, cư dân khu đô thị hưởng lợi từ hạ tầng xã hội, hạ tầng đô thị của khu vực với đầy đủ trung tâm thương mại, biển hồ nhân tạo, rạp chiếu phim, trường học, bệnh viện…
Từ dự án
Eurowindow Twin Parks


đến Bệnh viện Đa khoa Gia Lâm
đến UBND mới Gia Lâm
đến Vinhomes Ocean Park
đến cầu Thanh Trì
đến Aeonmall Long Biên
đến cầu Vĩnh Tuy
đến Hồ Gươm
đến sân bay Quốc tế Nội Bài


Khu đô thị "hai công viên"
Eurowindow Twin Parks nằm đối diện công viên hồ điều hòa lớn nhất tại trung tâm Gia Lâm quy hoạch gần 31ha & sở hữu 3 khu vườn chủ đề An Viên, Lam Viên & Long Viên.

TÒA NHÀ ĐỂ XE RIÊNG
Tòa nhà để xe rộng gần 3000m2 đáp ứng toàn bộ nhu cầu đỗ xe của cư dân. Gia chủ không cần làm gara trong nhà, tiết kiệm diện tích, gia tăng không gian sử dụng.

QUY HOẠCH THEO MÔ HÌNH Ô BÀN CỜ MỞ
Khu đô thị được quy hoạch tương đồng 36 phố phường Hà Nội xưa, giúp thuận tiện cho kinh doanh, buôn bán và di chuyển.

SỬ DỤNG CỬA HỘP KÍNH EUROWINDOW
Hệ cửa Eurowindow cao cấp với khả năng cách âm, cách nhiệt vượt trội giúp chống ồn và tiết kiệm điện năng.

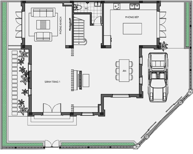
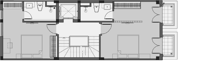
| Số lượng: | 96 căn (3 tầng + 1 tum) |
| Diện tích đất: | 192.5 - 225.5m2 |
| Diện tích xây dựng: | 347.4 - 374.0m2 |

Hình ảnh
Video
Tài liệu bán hàng
Hình ảnh
Hình ảnh
Hình ảnh
Hình ảnh
Hình ảnh
Hình ảnh
Hình ảnh
Hình ảnh
Hình ảnh
Hình ảnh
Hình ảnh
Hình ảnh
Hình ảnh
Hình ảnh
Hình ảnh
Hình ảnh
tin tức nổi bật